A Na’Conxypan Galéria
2024-ben nyitotta meg hivatalosan kapuit a II. Rákóczi Ferenc Kárpátaljai Magyar Főiskola területén a Na’Conxypan Galéria.
Miért pont éppen Na’Conxypan?
A galériának szerettek volna egy olyan nevet adni, ami nem kifejezetten egy művész neve, hanem inkább egy olyan művészeti vonatkozású foglalom, amihez több pontból is lehet csatlakozni. Ezen kívül fontos volt az is, hogy a név figyelemfelkeltő legyen, valamint legyen kapcsolódása Kárpátaljához és Beregszászhoz.
Ezért esett a választás a több szálon Beregszászhoz köthető alkotó, Gulácsy Lajos elképzelt világára, Na’Conxypanra. Maga az alkotó is Beregszász szecessziós szépségét csodálhatta gyerekkora alatt és az általa kitalált világ is szépen illik Beregszász régi főterének miliőjébe. Na’Conxypant a szecessziós, rokokós jelképek veszik körül és sok művész fantáziáját megmozgatja. Az álombeli világot feldolgozó alkotások, reflekciók mind helyet kapnak a galéria kialakításában; akár a visszatérő hópehely motívumban, amit Kormos István: Nakonxipánban hull a hó című verséből merítettük.
A valóságban sok negatív behatás érte Gulácsyt Na’Conxypan kitalálásakor, ezek az életformáló traumák és rossz környezeti hatások sajnos a mi hétköznapjaink állandó résztvevői is és nem csoda, hogy mi is Na’Conxypanba menekülünk és oda hívjuk a többi megpihenni vágyót. A galériába pedig mindig várják az érdeklődőket, hogy kicsit kiszakadjanak a hétköznapokból és megcsodálhatják a kiállításokat.
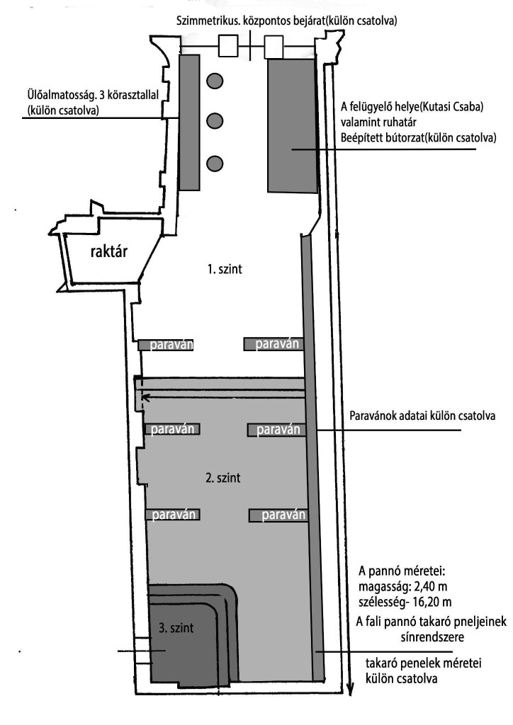
A Na’Conxypan Galéria szerkezeti terve és a berendezések vázlata

Koncepció
Gulácsy Lajos Csodaországában bármi megtörténhetett, amit a képzelet elbírt – egy menedékhely volt a művész számára. A világ brutalitása és a 2. világháború szörnyűségeitől menekülve itt nyert pillanatnyi megnyugvásra. Célunk egy ehhez hasonló menedék és megbízható környezet kialakítása, alkotók és művészetkedvelők számára. Szakmai háttér biztosítása és kapcsolatteremtés a határokon innen és túlról érkező alkotók, kortárs művészeti programok előtt. A Na’Conxypan Galéria feladata Beregszász központjában emellett egy olyan kulturális tér kiépítése, ami a város és a főiskola számára is értéket teremt és közvetít. Olyan alkotói fórum és kiállítótér létrehozása volt a célunk, amelyben méltó helyet kap a múlt értékeinek megőrzése és bemutatása, de befogadó környezetet biztosít a friss és kísérletező művészeti elképzeléseinek is.
A kiállítótér tervrajza és a berendezési tárgyak elhelyezkedése

Működési terv
1. Programterv összeállítása – Terem használati szabályzat
- A kiállítótér éves programját minden év januárjában kell összeállítani a beérkező kérvények alapján. Egy hónapra maximum egy kiállítás tervezhető be, amit kiegészíthet más, falakat nem igénybe vevő rendezvény (múzeumpedagógia foglalkozás, kamara koncert, beszélgető est)
- A kiállítási szándékról, a honlapról letölthető kitöltött kérvénnyel kell nyilatkozni, amihez csatolni kell a tervezett program, kiállítási anyag rövid leírását, esetleg kiállító személy életrajzát, honlapját, portfólióját, a tervezett kiállítás címét, kiállított tárgyak reprodukcióját köteles elküldeni az alábbi címre: nakonxipan@kmf.org.ua.
- A beérkező kérvények regisztrációja, iktatása után levélben küldünk választ, amiben pontosan megjelöljük a válaszadás tervezett idejét, ami nem lehet több egy hónapnál.
- A programterv összeállításában Kutasi Csaba – galéria vezető, Kulin Ágnes, megbízott kurátor, a II.RFKMF vezetőségének képviselője és a Fodó Sándor Kulturális Központ képviselője vesz részt.
- A galériában rendezett programok reklámanyagának, digitális felületének és hivatalos rendezvények felszólalásainak két nyelven kell megjelenniük és elhangoznia: az állam nyelvén ukránul és magyarul.
- A kiállítótér hétfőnként zárva van, viszont hétvégenként nyitva áll az érdeklődők előtt.
- Minden hét hétfője, a többi kulturális intézményhez hasonlóan szabadnap.
- A kiállítótér felügyelője mellett, a kiállítások előkészítésében egy kurátornak is részt kell vennie.
- A kiállítások expozíciójával és rendezésével kapcsolatban, egyeztetni kell a kiállítóterem megbízott kurátorával, Kulin Ágnessel.
- A galériában pornográf jellegű, blaszfémikus-Istenkáromló alkotások nem kerülhetnek bemutatásra.
- A kiállítások rendezésére- expozíció készítésére minimum 2 napra van szükség:

1. nap: munkák beérkezése és átvétele, kicsomagolása. Ide tartozik a terem ideiglenese átrendezése, akár álfalak-paravánok átfestése, az alkotások elrendezése
2. nap: a címkártyák kétnyelvű (magyar-ukrán) készítése, nyomtatása és kihelyezése, a megnyitó rendezvény előkészítése, takarítás
- A kiállítások lebontására minimum két napra van szükség:
1. nap: a címkártyák és munkák leszedése és csomagolása
2. nap: alkotások, műtárgyak elszállítása, takarítás
2. Kiállítások, rendezvények szervezése, alkotások beérkezése
- Egy kiállítás szervezésére minimum egy hónapra van szükség, a kérvény beérkezése és a megnyitó napja között.
- A kiállítandó alkotásoknak minimum két nappal korábban be kell érkezniük a galériába a megnyitó előtt.
- A képek szállítását a kiállító személy/ szervezet önállóan oldja meg.
- Az alkotások beérkezésekor és kivételekor átvételi elismervényt ír alá az átadó és az átvevő személy, ebben az alkotások számát és műfaját (kép, szobor, stb.) kell jelölni, esetleges hibákat-sérüléseket és megjegyzéseket feljegyezni.
- A megnyitókra a digitális meghívókat minimum egy héttel a rendezvény előtt küldi szét a galéria munkatársa a protokoll listájára és az kerül fel a galéria digitális felületeire, fórumaira.
3. Megnyitó szabályzat
- A megnyitó felszólalásainak két nyelven kell elhangoznia, az állam nyelvén ukránul és magyarul.
- A kiállítások megnyitóját hétköznapokon: a keddi, szerdai, csütörtöki napokra lehet betervezni 15:30-as kezdettel (közép-európai idő szerint), igazodva a II.RFKMF órarendjéhez.
- A kiállítások grafikai arculatát (ukrán-magyar digitális meghívó, ukrán-magyar plakát, ukrán-magyar címkártyák) egyeztetni kell a galériával, vagy egy reprodukció és cím megadásával a galéria által felhasznált sablonokat lehet felhasználni, ezek elkészítéséhez minimum két héttel a megnyitó előtt a szükséges adatokat el kell küldeni a galéria számára.